The Compound is a nonprofit artist-run residence, studio and event space. It is located along Kirk Ave., in the East Baltimore Midway neighborhood. The building was previously home to the S.W. Betz forklift factory before it sat vacant for a number of years. Baltimore artists Nicholas Wisniewski and Marlon Ziello purchased the property in 2010 and, in collaboration with others, transformed it over the years into the space it is today.
With one facade towards the street, the Compound opens inwards on itself and the community of artists that live and work there. The Compound encompasses multiple buildings including studio space, event space, a wood shop, recording studio, and four row houses. At the time of this project, the row houses were underutilized and in need of rehabilitation.
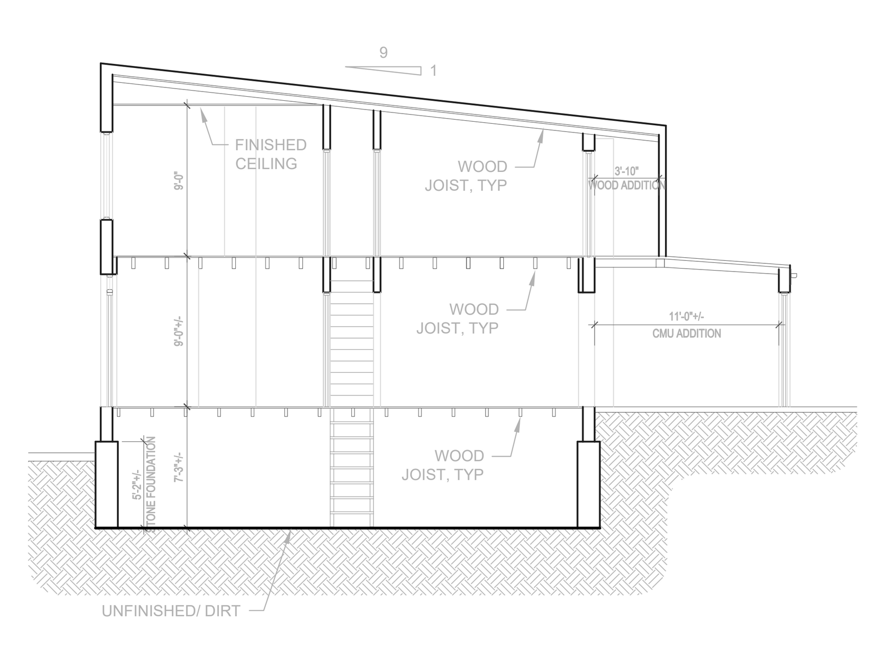
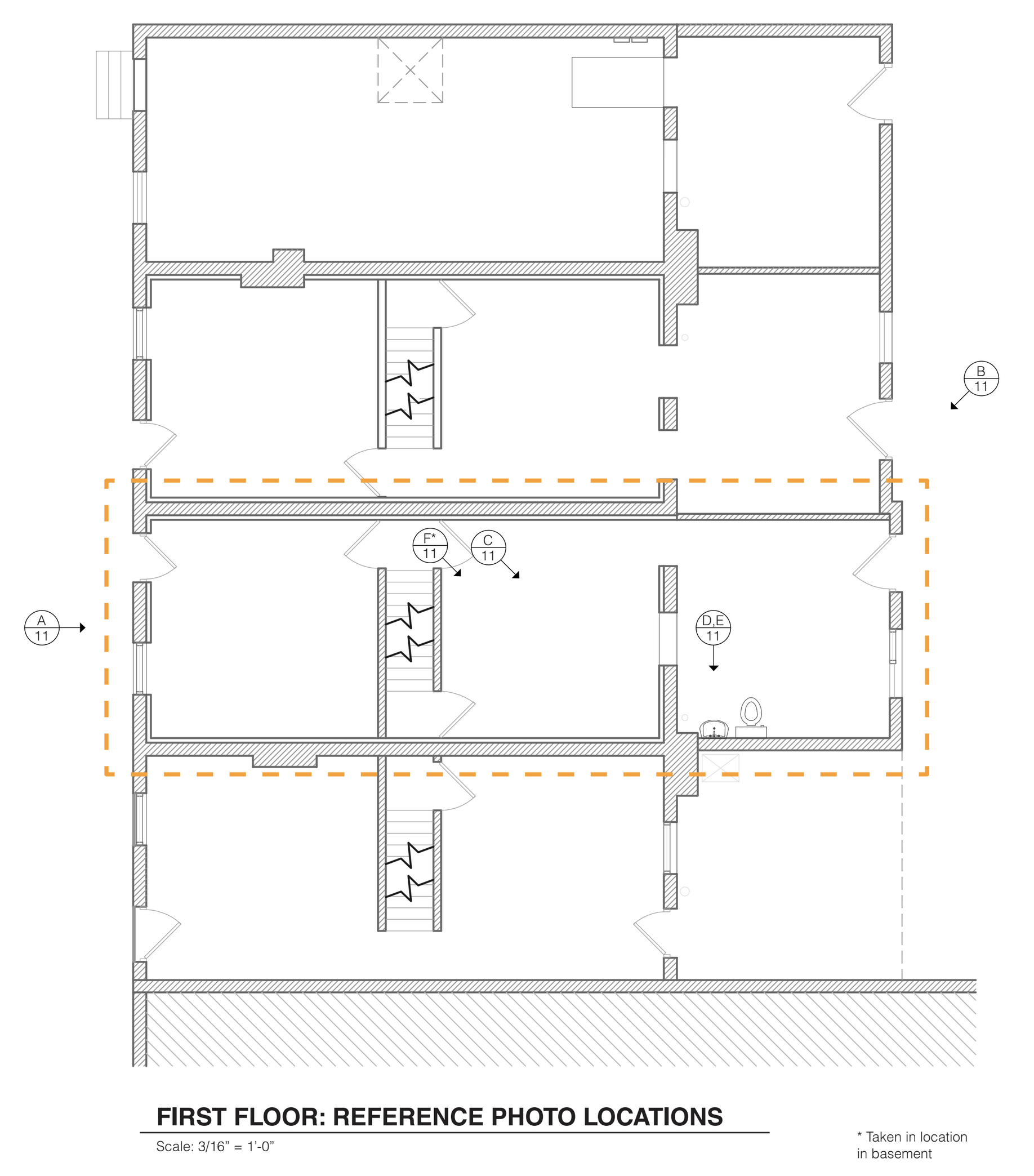
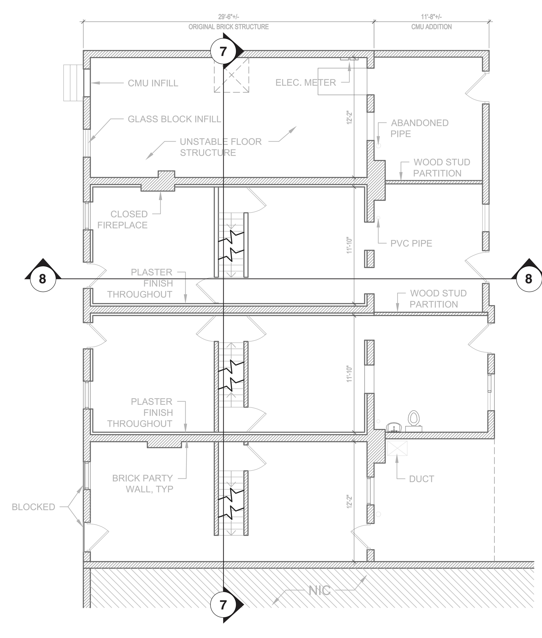
As part of NDC’s Arts Space Technical Assistance Program, NDC staff Karla Brent field measured and documented existing conditions of the row houses, and completed a zoning analysis of allowable uses for the zoning district.
The following drawings were a part of the deliverable, which show existing conditions. These drawings were used by a local architecture firm, Quinn Evans, as a jumping off point in creating a concept for the row houses and fulfilling the collective’s vision of environmentally conscious affordable live-work units for artists.
As of 2022, the Midway Neighborhood Cooperative, a local worker owned construction company (pictured above), is playing a role in the project’s demolition and construction work. Follow the project’s construction progress on their instagram @thecompoundbaltimore! Learn more about the Compound at their website thecompoundbaltimore.com.
Last Updated December 2023