the Neighborhood Design Center
Slide 1 of 4

Waller
Gallery is located within an approximate 2,800 square foot three story row house in the Barclay neighborhood of Baltimore City. One of our partners, Central Baltimore Partnership, connected Waller Gallery’s curator, Joy Davis, to the Neighborhood Design Center for assistance in planning renovation work for the gallery. 


Through NDC’s Arts Space Technical Assistance Program, we collaborated with Joy
in creating a conceptual plan centered around accessibility, visibility, and lighting. NDC staff, Karla Brent, field measured and documented existing conditions and worked with Joy to understand the needs of the gallery. We collaborated with a volunteer lighting consultant, Chris Holland of Holland Lighting Design, in creating a lighting plan appropriate for displaying different types of art. 

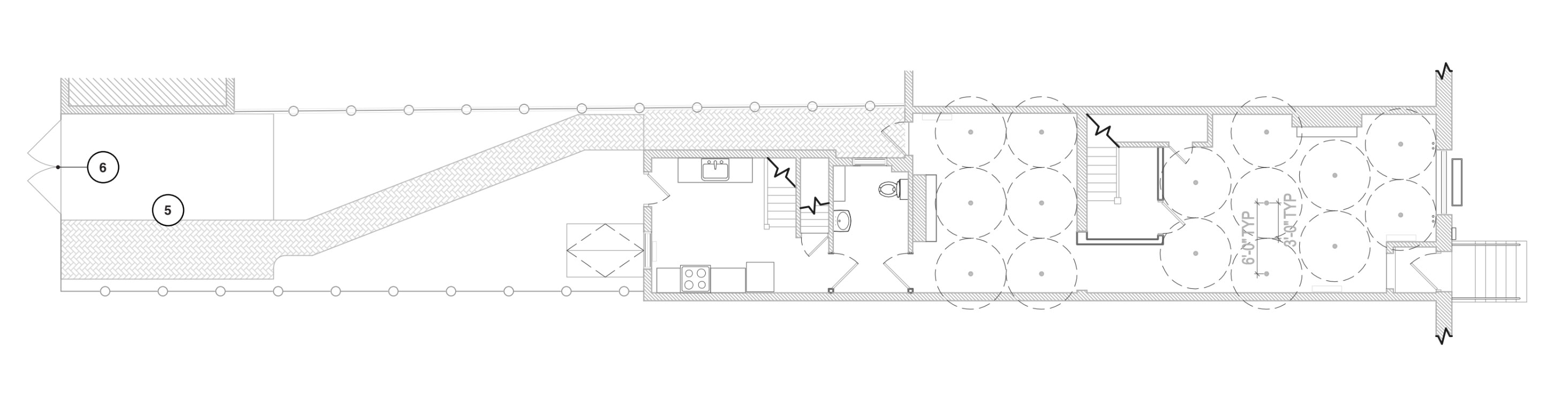
The proposed renovation work includes new signage off of their Calvert Street entrance to cue visitors of their location. The existing bathroom will be modified and expanded to accommodate ADA access. A future second entrance is proposed at the rear of the gallery. This entrance is at grade which will make it accessible and also give the gallery direct access to the rear yard for potential outdoor events. The conceptual design also takes into consideration fire rated separations between the residential portions of the building and the gallery. 

At the time of the project, the COVID-19 pandemic was new. One goal of the project was to understand how the gallery can continue to operate under COVID-19 precautions and recommendations from the health department. A social / physical distancing layout was created as part of the deliverable.

The existing spotty fluorescent lighting fixtures will be replaced with a cohesive system of general and track lighting more suitable for displaying art. Lighting design was by Chris Holland of Holland Lighting Design.

For the interior, a linear LED downlight provides a soft even wash over the space for when artists are installing or removing their work. Dimmable 2-circuit track with adjustable fittings allow the art to become the center of attention in the space. Track fittings can be removed, rearranged, and refocused as the art in the space is changed.

For the exterior, downlights provide an inviting warmth at each entrance. Along the rear pathway, bollards will be integrated with the landscaping, and low level step lights will be integrated along the walk creating an inviting glow at the rear entrance to the gallery.

Learn more about Waller Gallery at wallergallery.com or on their instagram @wallergallery, or this BMOREART article.

Last Updated November 2022

Similar Projects