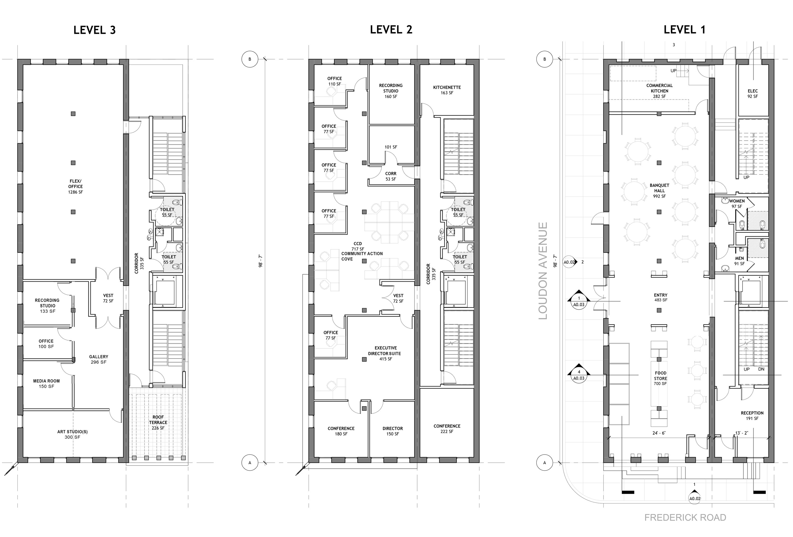
This exciting economic development initiative aims to transform 5,000-square-feet in Irvington, Baltimore into a incubator-style network.
NDC provided concepts to imagine a space where small minority-owned businesses will be welcomed, envisioning a community-owned co-op grocery store, multimedia center, and retail vending stalls.
Indoor market
Commercial Kitchen
Multi-purpose rental hall
Roof-top terrace
Audio-visual studio
Community Gallery
Office space for trades and arts organizations
Activated exterior
This project was fueled by design volunteers William Cleaveland, Duong Le, and Shekesia Joyner under the direction of NDC staff Julia DiMauro. The project was funded by Community Design Works CDBG through Baltimore City’s DHCD.
Last Updated January 2026