the Neighborhood Design Center

News

February 1, 2016

*** Riverdale Park Winter Pop-Up Farmers Market

#gallery-2 { margin: auto; } #gallery-2 .gallery-item { float: left; margin-top: 10px; text-align: center; width: 33%; } #gallery-2 img { border: 2px solid #cfcfcf; } #gallery-2 .gallery-caption { margin-left: 0; } /* see gallery_shortcode() in wp-includes/media.php */

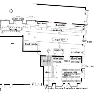
Schematic plan. Image by Allie O'Neill and Alexeus Nicol.

Schematic plan. Image by Allie O’Neill and Alexeus Nicol.

CDW-RP-Popup-Market_slideshow_3-300x300.jpg

Music to soothe the hungry beast. Image by NDC.

CDW-RP-Popup-Market-scene-300x300.jpg

NDC Project #2386Community Design WorksDesign completed 2015.

The Town of Riverdale Park Farmers Market Committee needed design and technical assistance to activate a long vacant shop front by implementing an indoor pop-up farmers market for the winter 2014-15 season. The Market Committee desired to stay open during the winter in order to provide year-round fresh food access to the community, as well as offering an inviting and comfortable community gathering place.

High design on a low budget. Image by photographer or creator.

We recruited two professional designers, Allie O’Neill and Alexeus Nicol, who provided volunteer expertise for the market’s architectural and interior design concerns. Through various meetings and brainstorming sessions, the pop-up market team crafted beautiful, unique designs for interior decoration, furniture, and other amenities all within the Market Committee’s small budget.

A diverse volunteer force worked hours in the unheated building to see the project through.

The geometry of design illuminated. Image by photographer or creator.

Space plans, material suggestions, and signage were developed. Allie and Alexeus volunteered a combined 45 hours, resulting in a service value of $3,825. In its first inception, the pop-up winter market increased the opportunities for local farmers (and other artisans!) to sell and allowed residents of all incomes to purchase nutritious, high quality, affordable produce. For winter 2015-16, the market has gone indoors again, making clear the continued need for year-round fresh produce access, as well as the success of the winter market’s inaugural season!